IMMOBILIENANGEBOTE

Einziehen statt sanieren – Moderne Erdgeschosswohnung mit Garten + Garage in Ettlingen-Bruchhausen

76275 Ettlingen, Erdgeschosswohnung zum Kauf

Kontaktdaten

Robin Pelit, Immotify

Objektdaten

  • Objekt ID
    255
  • Objekttypen
    Erdgeschosswohnung, Wohnung
  • Adresse
    76275 Ettlingen
    Baden-Württemberg
  • Wohnfläche ca.
    75 m²
  • Zimmer
    3
  • Schlafzimmer
    2
  • Badezimmer
    1
  • Balkone
    1
  • Wesentlicher Energieträger
    Strom
  • Baujahr
    1968
  • Letzte Modernisierung
    2022
  • Zustand
    vollsaniert
  • Ausstattung
    gehoben
  • Stellplätze gesamt
    2
  • Garagen
    15.000 EUR (Anzahl: 2)
  • Provisionspflichtig
    Ja
  • Käufer­provision
    3,57%
    Die Vermittlungsprovision beträgt für den Käufer 3,57 % vom beurkundeten Gesamtkaufpreis inkl. MwSt. Ferner haben wir einen provisionspflichtigen Vermarktungsauftrag mit dem Verkäufer in selber Höhe abgeschlossen.
  • Kaufpreis
    367.000 EUR

Ausstattung / Merkmale

  • ✓ Abstellraum
  • ✓ Außenstellplatz
  • ✓ Badewanne
  • ✓ Balkon
  • ✓ Einbauküche
  • ✓ Fliesenboden
  • ✓ Garage
  • ✓ Garten/Gartennutzung
  • ✓ Keller
  • ✓ Tageslichtbad

Energieausweis

  • Energieausweistyp
    Verbrauchs­ausweis
  • Ausstellungsdatum
    01.10.2025
  • Gültig bis
    30.09.2035
  • Gebäudeart
    Wohngebäude
  • Baujahr
    1968
  • Primärenergieträger
    Strom
  • Endenergie­verbrauch
    17,60 kWh/(m²·a)
  • Warmwasser enthalten
    ja
  • Energie­effizienz­klasse
    A+
0 25 50 75 100 125 150 175 200 225 250+ H G F E D C B A A+ H G F E D C B A A+ Endenergieverbrauch 17,60 kWh/(m²·a)

Objekt­beschreibung

Beschreibung

Einziehen statt sanieren – Moderne Erdgeschosswohnung mit Garten + Garage in Ettlingen-Bruchhausen

Folgen Sie unserem 360°-Rundgang:
https://my.matterport.com/show/?m=BS6H33UpTvY

Oder noch besser, kommen Sie zur Besichtigung und erleben Sie diese hochwertige Immobilie live vor Ort:

Die Erdgeschosswohnung befindet sich in einem ab dem Jahr 2022 umfassend kernsanierten Zweifamilienhaus und verbindet modernen Wohnkomfort mit hochwertiger Ausstattung und einer durchdachten Raumaufteilung. Auf einem Grundstück von 659 m² bietet die Wohnung rund 75 m² Wohnfläche.

Die Immobilie wurde ursprünglich im Jahr 1968 massiv gebaut und mit einer hocheffizienten Wärmepumpe ausgestattet. Dank dreifach verglaster Fenster mit elektrischen Rollläden, Vollwärmeschutz, Fußbodenheizung in allen Räumen sowie einer komplett erneuerten Elektrik, Leitungs- und Abwasserinstallation präsentiert sich die Immobilie auf dem neuesten technischen Stand. Hier müssen Sie keinerlei Sanierungen einplanen – alles ist bereits fertig, kalkulierbar und bezugsbereit.

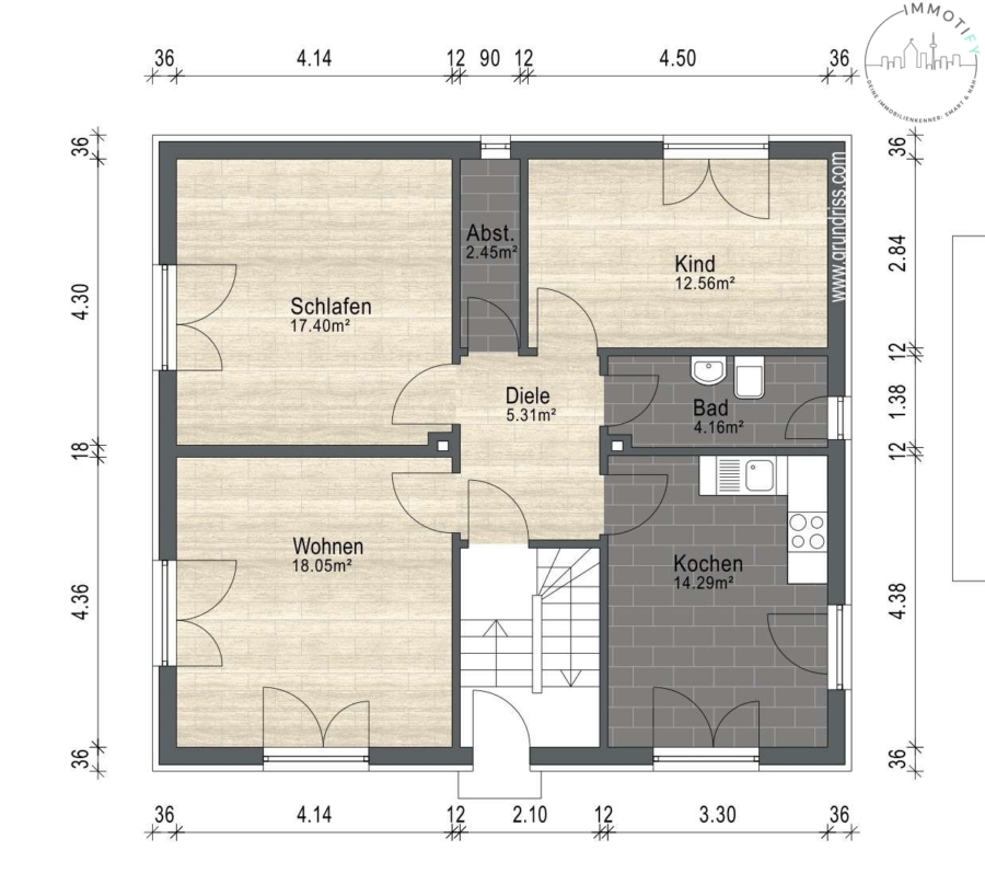
Die Erdgeschosswohnung überzeugt mit einer hellen und praktischen Raumgestaltung:
Einladende Diele, großzügiges Wohnzimmer, Schlafzimmer, Kinderzimmer, Abstellkammer, Tageslichtbad mit Wanne und WC, geräumige Wohnküche mit moderner Einbauküche

Ein Kellerraum gehört ebenfalls zur Wohnung.

Außenbereich:
Das großzügige Grundstück bietet vielfältige Möglichkeiten:
- Große Einfahrt mit Außenstellplätzen
- Ein Stellplatz in der Doppelgarage
- Alleinige Nutzung einer Terrasse und des Gartens

Ausstattung

- Fliesen- und Vinylbodenbelag
- 3-fach verglaste Fenster mit elektrischen Rollläden
- Einbauküche mit Elektrogeräten
- Bad mit Fenster und Badewanne
- Fußbodenheizung in sämtlichen Räumen
- Wärmepumpe
- Entkalkungsanlage
- Stellplatz in Doppelgarage mit elektrischem Tor

Sonstige Informationen

Verkaufspreis: € 367.000,-
zzgl. € 15.000,- für Stellplatz + € 5.000,- für Einbauküche
= gesamt € 387.000,-

Besichtigung: nach Vereinbarung

Die Vermittlungsprovision beträgt für den Käufer 3,57 % vom beurkundeten Gesamtkaufpreis inkl. MwSt. Ferner haben wir einen provisionspflichtigen Vermarktungsauftrag mit dem Verkäufer in selber Höhe abgeschlossen.

Die Objektdaten basieren auf Verkäuferinformationen. Alle Angaben ohne Gewähr.

Energieausweisart: Verbrauchsausweis
Gebäudetyp: Wohngebäude
Baujahr laut Energieausweis: 1968
Baujahr Heizung: 2022
Heizungsart: Luft-Wasser-Wärmepumpe
Befeuerung: Strom
Energiekennwert: 17,60 kWh/(m²*a)
Energieeffizienzklasse: A+
Datum Energieausweis: 01.10.2025
Gültig bis: 30.09.2035

Lage

Die Immobilie befindet sich in einer ruhigen und dennoch zentral angebundenen Wohnlage von Ettlingen-Bruchhausen. Der beliebte Ortsteil überzeugt durch seine familienfreundliche Infrastruktur, das dörflich geprägte Umfeld und die unmittelbare Nähe zur Natur. Einkaufsmöglichkeiten für den täglichen Bedarf, Kindergärten, Schulen sowie Ärzte und Apotheken sind bequem erreichbar.

Dank der sehr guten Verkehrsanbindung erreicht man sowohl die Ettlinger Innenstadt als auch Karlsruhe in wenigen Minuten. Eine schnelle Anbindung an die Bundesstraße B3 sowie die Autobahn A5 sorgt für kurze Wege in die gesamte Region. Mit dem Bus erreicht man in wenigen Minuten die Ettlinger Innenstadt. Die S-Bahn-Station ist fußläufig erreichbar und bietet eine direkte Verbindung in Richtung Karlsruhe oder Malsch.

Besonders hervorzuheben ist die hohe Wohnqualität: Felder und Grünflächen liegen in unmittelbarer Umgebung und laden zu Spaziergängen, Fahrradtouren oder sportlichen Aktivitäten im Freien ein. Gleichzeitig profitiert man von der hervorragenden Infrastruktur einer gewachsenen Wohnlage – ein idealer Standort für Familien und Paare.

Die ungefähre Position der Immobilie auf Google Maps ansehen (Link auf externe Website)

Direktanfrage

* Pflichtangaben
 SSL-verschlüsselt
Immobiliendaten-Import und Darstellung für WordPress: WP-ImmoMakler®

Immobilienkauf

Dein Immobilientraum. Unser Ziel. Gemeinsam finden wir dein Zuhause.

Immobilienverkauf

Smart verkaufen. Bestes Marketing. Optimaler Preis.

Immobilie Mieten

Intelligent zur Traumwohnung. Lass uns dir bei der Suche helfen.

immobilie vermieten

Cleverer Mietprozess. Wir finden deine Top-Mieter.

Immobilienkauf

Dein Immobilientraum. Unser Ziel. Gemeinsam finden wir dein Zuhause.

Immobilienverkauf

Smart verkaufen. Bestes Marketing. Optimaler Preis.

Immobilie Mieten

Intelligent zur Traumwohnung. Lass uns dir bei der Suche helfen.

Immobilie vermieten

Cleverer Mietprozess. Wir finden deine Top-Mieter.

5.0
powered by Google
Silke Gago
18:15 27 Jun 23
Ich habe mich von Anfang an gut beraten und betreut gefühlt. Am Anfang war ich etwas skeptisch hinsichtlich des Alters. Diese Skepsis war aber bereits nach den ersten Zusammentreffen verflogen, ob der sympathischen Art, der Objekte, der kompetenten Beratung und der Zeit, die er sich für uns nahm. Jede Frage wurde eingehend beleuchtet und beantwortet. Auf jeden Fall Daumen hoch für die Weiterempfehlung.
Katja Heil
10:36 27 Jun 23
Herr Pelit und sein Team konnten meine Wohnung schnell und reibungslos verkaufen, alle Mitarbeiter waren stets freundlich und professionell. Ich kann das Büro uneingeschränkt empfehlen
Isa
20:35 26 Jun 23
Kompetentes & junges Team! Sehr hilfreich, sofort da wenn man Fragen hat und natürlich in dem Zuge auch äußerst zuvorkommend. Ich kann Immotify besonders denjenigen empfehlen die Lust auf Abwechslung und Freude während der Zusammenarbeit haben :)

5 Sterne habt ihr euch verdient

P.s. Euer Instagram Account ist der Hammer ;)
Fabio Nack
11:35 26 Jun 23
Der Makler in der Region. Junges und vor allem innovatives Team. Kompetente Betreuung! So wünscht man sich das. Ebenfalls zu empfehlen ist einfach mal auf Instagram oder Youtube bei Immotify vorbeizuschauen. Es lohnt sich!

Weiter so ihr macht das Klasse!

Liebe Grüße
Boryana Hei
19:04 07 Jun 23
Coole und informative Content auf ihren Social-Media-Kanälen! Was ich an Immotify besonders schätze, ist, dass sie ihren Followern regelmäßig wertvolle Tipps und Ratschläge geben, um ihnen bei der Treffen fundierter Entscheidungen zu helfen.