IMMOBILIENANGEBOTE

Großzügig. Ruhig. Flexibel. – 3-Zimmer-Maisonette mit Galerie und Balkon in Waldbronn

76337 Waldbronn, Maisonettewohnung zum Kauf

Kontaktdaten

Felix Heidkamp, Immotify

Objektdaten

  • Objekt ID
    317
  • Objekttypen
    Maisonettewohnung, Wohnung
  • Adresse
    76337 Waldbronn
    Baden-Württemberg
  • Etage
    2
  • Wohnfläche ca.
    106 m²
  • Balkon-/Terrassen­fläche ca.
    16 m²
  • Zimmer
    3
  • Badezimmer
    1
  • Balkone
    1
  • Heizungsart
    Fußbodenheizung
  • Wesentlicher Energieträger
    Gas
  • Baujahr
    1980
  • Letzte Modernisierung
    2011
  • Zustand
    gepflegt
  • Ausstattung
    Standard
  • Stellplätze gesamt
    1
  • Tief­garagen­stell­platz
    15.000 EUR (Anzahl: 1)
  • Verfügbar ab
    nach Absprache
  • Provisionspflichtig
    Ja
  • Käufer­provision
    3,57%
    Die Vermittlungsprovision beträgt für den Käufer 3,57 % vom beurkundeten Gesamtkaufpreis inkl. MwSt. Ferner haben wir einen provisionspflichtigen Vermarktungsauftrag mit dem Verkäufer in selber Höhe abgeschlossen.
  • Kaufpreis
    332.000 EUR

Ausstattung / Merkmale

  • ✓ Balkon
  • ✓ Dusche
  • ✓ Einbauküche
  • ✓ Fliesenboden
  • ✓ Gäste-WC
  • ✓ Keller
  • ✓ Tiefgarage

Energieausweis

  • Energieausweistyp
    Verbrauchs­ausweis
  • Ausstellungsdatum
    16.01.2020
  • Gültig bis
    16.01.2030
  • Gebäudeart
    Wohngebäude
  • Baujahr
    1980
  • Primärenergieträger
    Gas
  • Endenergie­verbrauch
    180,90 kWh/(m²·a)
  • Warmwasser enthalten
    ja
  • Energie­effizienz­klasse
    F
0 25 50 75 100 125 150 175 200 225 250+ H G F E D C B A A+ H G F E D C B A A+ Endenergieverbrauch 180,90 kWh/(m²·a)

Objekt­beschreibung

Beschreibung

Folgen Sie unserem 360°-Rundgang:
https://my.matterport.com/show/?m=gKi86G5pA52

Oder noch besser, erleben Sie diese Immobilie live vor Ort:

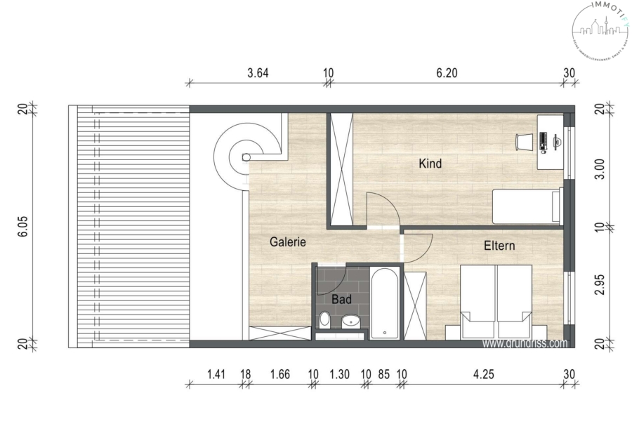
Diese gepflegte 3-Zimmer-Maisonettewohnung mit zusätzlichem Galeriebereich befindet sich in einem ansprechenden Wohnkomplex in zentraler und zugleich ruhiger Lage von Waldbronn. Das massiv gebaute Mehrfamilienhaus aus dem Jahr 1980 überzeugt durch seine solide Bauweise sowie eine angenehme, gewachsene Wohnstruktur.

Mit einer Wohnfläche von ca. 106 m² bietet die Wohnung ein durchdachtes Raumkonzept über zwei Ebenen und eignet sich ideal für Paare oder kleine Familien. Die Kombination aus offenen Wohnbereichen und separaten Rückzugsräumen sorgt für ein besonders komfortables Wohngefühl.

Beim Betreten der Wohnung gelangen Sie in einen zentralen Flur, der Zugang zur separaten Küche, dem Gäste-WC sowie dem großzügigen Wohn- und Essbereich bietet. Der Wohn- und Essbereich überzeugt durch seine angenehme Größe und den direkten Zugang zum Balkon, der ausreichend Platz zum Entspannen im Freien bietet. Die vorhandene Einbauküche fügt sich funktional in den Grundriss ein und präsentiert sich in einem zeitlosen, weißen Design. Sie ist mit hochwertiger Technik ausgestattet, darunter ein Backofen und eine Mikrowelle von Neff auf angenehmer Arbeitshöhe sowie ein Kochfeld von Gaggenau. Ein großes Fenster sorgt zusätzlich für viel Tageslicht und eine angenehme Arbeitsatmosphäre.

Die Wohnung verfügt über zwei gut geschnittene Schlafzimmer, ein gepflegtes Badezimmer sowie das bereits erwähnte Gäste-WC. Das Badezimmer wurde im Jahr 2011 modernisiert und mit einer Dusche ausgestattet.

Über eine Treppe gelangen Sie in den großzügigen Galeriebereich, der sich hervorragend als Homeoffice, Hobbyraum oder zusätzlicher Wohnbereich nutzen lässt und der Wohnung einen besonderen, offenen Charakter verleiht.

Die Ausstattung der Wohnung befindet sich in einem gepflegten Zustand. Im unteren Bereich sind Fliesen verlegt, während im oberen Bereich moderner Vinylboden (2011 erneuert) für eine warme und zeitgemäße Wohnatmosphäre sorgt. Die zweifach verglasten Holzfenster unterstreichen den soliden Charakter der Immobilie. Beheizt wird das Objekt über eine Gaszentralheizung aus dem Baujahr, kombiniert mit angenehmer Fußbodenheizung.

Ein eigener Kellerraum sowie ein Tiefgaragenstellplatz runden das Angebot komfortabel ab.

Besonders hervorzuheben ist, dass bereits eine Sonderumlage für umfangreiche Sanierungsmaßnahmen beschlossen und größtenteils geleistet wurde. In diesem Zuge werden das Dach vollständig erneuert, die Fassade modernisiert sowie eine neue Dämmung angebracht, eine deutliche Aufwertung des gesamten Gebäudes, von der Sie als zukünftiger Eigentümer profitieren.

Ausstattung

- Fliesenboden im unteren Wohnbereich, moderner Vinylboden im oberen Bereich
- zweifach verglaste Holzfenster
- Fußbodenheizung in der gesamten Wohnung
- Gas-Zentralheizung
- Gepflegtes Badezimmer (2011 modernisiert) mit Dusche
- Separates Gäste-WC
- Helle, zeitlose Einbauküche mit hochwertiger Technik:
- Neff Backofen und Mikrowelle auf angenehmer Arbeitshöhe
- Gaggenau Kochfeld
- Großes Fenster für viel Tageslicht
- Großzügiger Wohn- und Essbereich mit Zugang zum Balkon
- Balkon mit ausreichend Platz zum Entspannen
- Großzügiger Galeriebereich
- Zwei gut geschnittene Schlafzimmer
- Kellerabteil
- Tiefgaragenstellplatz
- Bereits beschlossene und gezahlte Sonderumlage für:
- Dachsanierung
- Fassadenerneuerung

Sonstige Informationen

Verkaufspreis: € 332.000,-
zzgl. TG-Stellplatz: € 15.000,-

= gesamt € 347.000,-

Die Wohnung ist nach Absprache verfügbar.

Hausgeld: ca. € 711,- / Monat

(Zusammensetzung: ca. € 397,- Bewirtschaftungskosten + ca. € 45,- nicht umlagefähige Kosten + ca. € 269,- für die Rücklagenbildung)

Besichtigung: nach Vereinbarung

Die Vermittlungsprovision beträgt für den Käufer 3,57 % vom beurkundeten Gesamtkaufpreis inkl. MwSt. Ferner haben wir einen provisionspflichtigen Vermarktungsauftrag mit dem Verkäufer in selber Höhe abgeschlossen.

Die Objektdaten basieren auf Verkäuferinformationen. Alle Angaben ohne Gewähr.

Energieausweisart: Verbrauchsausweis
Gebäudetyp: Mehrfamilienhaus
Baujahr laut Energieausweis: 1980
Heizungsart: Zentralheizung
Befeuerung: Gas
Energiekennwert: 180,9 kWh/(m²*a)
Energieeffizienzklasse: F
Datum Energieausweis: 16.01.2020
Gültig bis: 16.01.2030

Lage

Die Wohnung befindet sich in zentraler und zugleich angenehm ruhiger Lage von Waldbronn. Die Umgebung zeichnet sich durch eine gewachsene Struktur, viel Grün sowie eine entspannte Wohnatmosphäre aus – ideal für alle, die ruhiges Wohnen mit einer guten Infrastruktur verbinden möchten.

Waldbronn überzeugt durch seinen charmanten Ortskern mit verschiedenen Einkaufsmöglichkeiten, Cafés und Restaurants, die bequem erreichbar sind. Der nahegelegene Marktplatz bildet dabei einen beliebten Treffpunkt und bietet alles für den täglichen Bedarf in unmittelbarer Umgebung.

Sämtliche Einrichtungen des täglichen Lebens – darunter Supermärkte, Bäckereien, Apotheken und Banken – sind schnell erreichbar. Auch Familien profitieren von der Lage: Kindergärten, Schulen sowie zahlreiche Freizeitangebote befinden sich in der näheren Umgebung und sind teils fußläufig oder in wenigen Minuten erreichbar.

Für Erholung und Freizeit bietet Waldbronn ein vielseitiges Angebot. Die naturnahe Lage am Rande des Schwarzwalds lädt zu Spaziergängen, Wanderungen und sportlichen Aktivitäten ein. Besonders hervorzuheben ist das nahegelegene Thermalbad, das weit über die Region hinaus bekannt ist und zur Entspannung einlädt.

Auch die Verkehrsanbindung ist sehr gut: Über die nahegelegenen Bus- und Stadtbahnverbindungen gelangen Sie schnell und unkompliziert nach Karlsruhe sowie in die umliegenden Städte und Gemeinden. Somit eignet sich die Lage sowohl für Eigennutzer als auch für Berufspendler ideal.

Die ungefähre Position der Immobilie auf Google Maps ansehen (Link auf externe Website)

Direktanfrage

* Pflichtangaben
 SSL-verschlüsselt
Immobiliendaten-Import und Darstellung für WordPress: WP-ImmoMakler®

Immobilienkauf

Dein Immobilientraum. Unser Ziel. Gemeinsam finden wir dein Zuhause.

Immobilienverkauf

Smart verkaufen. Bestes Marketing. Optimaler Preis.

Immobilie Mieten

Intelligent zur Traumwohnung. Lass uns dir bei der Suche helfen.

immobilie vermieten

Cleverer Mietprozess. Wir finden deine Top-Mieter.

Immobilienkauf

Dein Immobilientraum. Unser Ziel. Gemeinsam finden wir dein Zuhause.

Immobilienverkauf

Smart verkaufen. Bestes Marketing. Optimaler Preis.

Immobilie Mieten

Intelligent zur Traumwohnung. Lass uns dir bei der Suche helfen.

Immobilie vermieten

Cleverer Mietprozess. Wir finden deine Top-Mieter.

Ortsbild von „immotify“
4.9
powered by Google
Profilbild von „Shirin Ud-Din“
Shirin Ud-Din
11:02 30 Mar 26
Ich kann Immotify uneingeschränkt weiterempfehlen. Wir hatten eine tolle Besichtigung mit Herrn Pelit. Er ist sehr herzlich, offen, professionell und total transparent was die Objekte angeht. Das haben wir so noch nicht erlebt bei einem Immobilienmakler.
Wir haben uns in sehr guten Händen gefühlt und werden weiterhin die Arbeit von Immotify verfolgen.
Profilbild von „Gökmen Ulas“
Gökmen Ulas
17:35 12 Mar 26
Wir waren mit immotify wirklich sehr zufrieden. Vom ersten Gespräch bis zum Verkauf unseres Hauses haben wir uns immer gut begleitet gefühlt.

Das Team arbeitet sehr organisiert und strukturiert. Besonders beeindruckt hat uns das moderne Exposé mit 3D-Darstellung und Video – unsere Immobilie wurde wirklich sehr professionell präsentiert.

Die Preiseinschätzung war von Anfang an realistisch und ehrlich. Während des gesamten Prozesses wurden wir regelmäßig über den Stand und die Gespräche mit Interessenten informiert.

Man merkt einfach, dass hier Erfahrung und Engagement zusammenkommen. Vielen Dank für die sehr angenehme Zusammenarbeit – wir können immotify auf jeden Fall weiterempfehlen.
Profilbild von „Manfred Kuczera“
Manfred Kuczera
15:54 10 Mar 26
Die Wertermittlung des Objekt und Verkaufstrategie wurde umfassend auch mittels detaillierter Zustandsbewertung ausgearbeitet und transparent vermittelt. An Hand mehrere Vergleichsobjekte konnte die Ermittlung des Objekt-Marktwertes abgesichert werden.
Die Verkaufsstrategie wurde verständlich und umfassend erläutert, sodass ein unmittelbarer Verkaufserfolg erreicht wurde.

Wir können den zügigen, kompetenten und freundlichen Service der "immotify GmbH - Immobilienmakler Karlsruhe / Ettlingen"
uneigeschränkt weiterempfehlen.
Manfred Kuczera
Profilbild von „Ellen Herrmann“
Ellen Herrmann
13:07 06 Feb 26
Die Zusammenarbeit mit Herrn Anhalt vom Team Immotify war von Anfang an sehr angenehm und professionell. Vom ersten Besichtigungstermin bis zum erfolgreichen Kauf fühlte ich mich jederzeit bestens betreut. Besonders überzeugt hat mich die ehrliche, transparente und fachkundige Beratung. Herr Anhalt war stets gut erreichbar, zuverlässig und hat sich viel Zeit für alle Fragen genommen. Klare Empfehlung – die Zusammenarbeit hat mir wirklich Freude bereitet.
Profilbild von „M W“
M W
16:11 26 Jan 26
Nach Kontakt mit unzähligen Maklern kann ich nur den einen empfehlen: immotify!
Robin Pelit und sein gesamtes Team sind die Makler, die die extra Meile gehen - für den Käufer und den Verkäufer!
Professionell, Persönlich und mit Performance.
Profilbild von „K“
K
07:47 18 Dec 25
Wir sind sehr begeistert von der gesamten Abwicklung über immotify! Über Felix Heidkamp haben wir unsere Traumwohnung in unserem Wunschstadtteil gefunden.

Von der ersten Besichtigung bis hin zur Begleitung beim Mietvertragsabschluss war der Kontakt sehr kompetent, freundlich und zuverlässig. Ein besonderes Highlight war die professionelle 3D-Begehung via Matterport: Herr Heidkamp hat uns den Zugang freundlicherweise sogar nach Vertragsunterzeichnung weiterhin ermöglicht. So konnten wir schon vor dem Einzug perfekt unsere Möbel planen und Maße nehmen.

Vielen Dank für die tolle Unterstützung, wir können das Team nur wärmstens weiterempfehlen.
Profilbild von „blaz3leon“
blaz3leon
17:21 09 Dec 25
Ich kann Felix Heidkamp uneingeschränkt weiterempfehlen. Von der ersten Kontaktaufnahme bis zum finalen Vertragsabschluss verlief alles professionell, transparent und zuverlässig. Seine fachkundige Beratung und die realistische Einschätzung des Marktes hat mich überzeugt. Herr Heidkamp war immer erreichbar, nahm sich für alle Fragen Zeit und konnte sie verständlich beantworten. Dank seines Engagements verlief der gesamte Prozess reibungslos. Ich bedanke mich herzlich und würde mich jederzeit wieder für Herrn Heidkamp entscheiden.
Profilbild von „Maksio Schell“
Maksio Schell
16:09 25 Nov 25
Ich hatte das Vergnügen, über Felix Heidkamp eine Wohnung zu besichtigen – und ich muss ehrlich sagen: Selten hat mich ein Immobilienmakler so überzeugt. Trotz seines jungen Alters strahlt er eine Professionalität, Ruhe und Fachkompetenz aus, die man sonst nur von langjährigen Branchenprofis kennt.

Vom ersten Kontakt an lief alles extrem freundlich, strukturiert und zuverlässig ab. Die Kommunikation war klar und schnell, Fragen wurden sofort beantwortet, und ich hatte zu jedem Zeitpunkt das Gefühl, in besten Händen zu sein. Die Besichtigung selbst war perfekt vorbereitet: alle Unterlagen parat, umfassende Informationen zur Immobilie und Umgebung – absolut vorbildlich.

Was mich besonders beeindruckt hat, war seine ehrliche, transparente Art. Kein Verkaufsdruck, keine Floskeln – stattdessen ein authentischer Makler, der wirklich weiß, was er tut und für seine Kunden das Beste herausholen möchte.

Ich kann Felix Heidkamp uneingeschränkt weiterempfehlen – egal ob für den Kauf, Verkauf oder eine Vermietung. Wer einen Makler sucht, der Kompetenz, Engagement und Menschlichkeit vereint, ist bei ihm zu 100 % richtig!
Profilbild von „Kutay Demirci“
Kutay Demirci
12:55 24 Nov 25
Ich habe mich bei Felix Heidkamp von Anfang an sehr gut aufgehoben gefühlt. Die Kommunikation war jederzeit freundlich, transparent und auf Augenhöhe.

Alle Unterlagen waren strukturiert und professionell aufbereitet, sodass man sich schnell einen Überblick verschaffen konnte. Rückfragen wurden stets zeitnah, kompetent und geduldig beantwortet.

Besonders hilfreich fand ich die 360-Grad-Online-Tour, mit der man sich schon vor dem Vor-Ort-Termin ein sehr gutes Bild von der Immobilie machen konnte.

Man merkt Felix Heidkamp die Motivation und Leidenschaft für Immobilien wirklich an – der Kontakt war für mich eine durchweg positive und erfrischende Erfahrung. Klare Empfehlung!
Profilbild von „Silke Gago“
Silke Gago
18:15 27 Jun 23
Ich habe mich von Anfang an gut beraten und betreut gefühlt. Am Anfang war ich etwas skeptisch hinsichtlich des Alters. Diese Skepsis war aber bereits nach den ersten Zusammentreffen verflogen, ob der sympathischen Art, der Objekte, der kompetenten Beratung und der Zeit, die er sich für uns nahm. Jede Frage wurde eingehend beleuchtet und beantwortet. Auf jeden Fall Daumen hoch für die Weiterempfehlung.
Profilbild von „Katja Heil“
Katja Heil
10:36 27 Jun 23
Herr Pelit und sein Team konnten meine Wohnung schnell und reibungslos verkaufen, alle Mitarbeiter waren stets freundlich und professionell. Ich kann das Büro uneingeschränkt empfehlen
Profilbild von „Isa“
Isa
20:35 26 Jun 23
Kompetentes & junges Team! Sehr hilfreich, sofort da wenn man Fragen hat und natürlich in dem Zuge auch äußerst zuvorkommend. Ich kann Immotify besonders denjenigen empfehlen die Lust auf Abwechslung und Freude während der Zusammenarbeit haben :)

5 Sterne habt ihr euch verdient

P.s. Euer Instagram Account ist der Hammer ;)
Profilbild von „Fabio Nack“
Fabio Nack
11:35 26 Jun 23
Der Makler in der Region. Junges und vor allem innovatives Team. Kompetente Betreuung! So wünscht man sich das. Ebenfalls zu empfehlen ist einfach mal auf Instagram oder Youtube bei Immotify vorbeizuschauen. Es lohnt sich!

Weiter so ihr macht das Klasse!

Liebe Grüße
Profilbild von „Boryana Hei“
Boryana Hei
19:04 07 Jun 23
Coole und informative Content auf ihren Social-Media-Kanälen! Was ich an Immotify besonders schätze, ist, dass sie ihren Followern regelmäßig wertvolle Tipps und Ratschläge geben, um ihnen bei der Treffen fundierter Entscheidungen zu helfen.